追梦工控论坛|工控论坛-专业的Intouch论坛

 找回密码
 立即注册

QQ登录

只需一步,快速开始

总共8238条微博

动态微博

查看: 3213|回复: 2

[求助-西门子传动技术] 程序疑惑

[复制链接]

升级  26%

该用户从未签到

发表于 2014-9-10 18:30:41 | 显示全部楼层 |阅读模式

上传分享工控资料得追梦点,下载积分获取办法点击进入 ☆追梦点充值入口
发帖回帖赚金币兑换下载积分。上传附件须知点击进入

×

马上注册,结交更多工控达人,分享经验,让你轻松玩转追梦工控论坛。

已有帐号?  点击登录   或者        

支付宝扫一扫领红包
问题1:对于图1临时线圈DB1DBX0.1的作用 和含义,具有怎么样的逻辑,这段程序具有怎么样的逻辑,程序的其他地方也没用到这个临时线圈的常开点,
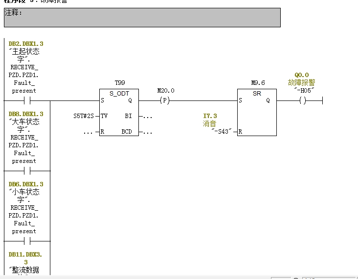
问题2:对于图2 上升沿在这里有什么作用,不用上升沿效果一样吗,好处是什么
问题3:对于图3和4这段程序是将DB2的状态字赋值到MW30的,M30.4代表DB2DBX0.4这个点,为什么不直接用还要用M30.4这个点,在图5和6中都是直接用的啊</P>问题4:对于图5和6分别为起重机的主起升运行的上升和下降的逻辑,为什么下降的时候抱闸打不开就不允许电机运行,上升为什么没有这个程序
问题5:对于抱闸控制参数 R899.12含义为打开抱闸装置,r1229.1为指令打开抱闸,连续信号,有区别吗?这两个参数是在抱闸条件满足后,给外部一个打开抱闸的状态字吗?应该用哪个
谢谢


图片说明: 1,图2 2,图6 3,图3 4,图1 5,图4 6,图5
让我们联手拒绝网络伸手党,下载积分获取办法&附件上传须知 ☆追梦点充值入口





+1
3215°C
2
  • 周文峰
  • zruLsWqE
过: 他们

升级  18.5%

该用户从未签到

发表于 2014-9-10 19:27:41 | 显示全部楼层
1、(#)表示未定义的逻辑。你可以直接忽略它。
2、上升沿表示只有前面的条件第一个满足条件的扫描周期才会执行后面的程序,如果你不要上升沿,则无法完成消音,一直报警,按下消音按钮,报停停止,,松开消音按钮后,报警会再次响起。
3、图5和图6都是给状态字赋值的,不是使用它,你可以直接使用mw30中的值或者dbw0中的值,图5和图6都是给dbw2中赋值的。
4、防止电机突然反转,过大的电流烧毁电机。
5、  R899.12含义为打开抱闸装置,表示为反馈信号,r1229.1为指令打开抱闸,表示为打开的命令动作,应该是执行一段时间才会开到位。具体你需要看电机的控制参数说明。
                                                                                                                                                                                                                                                              
                                                        

升级  29%

该用户从未签到

发表于 2014-9-10 20:15:26 | 显示全部楼层
我昨天有回复没有成功。
1)这个临时线圈是编程者当时有其它的用处,只是后来放弃了(就只有这个线圈而言)。
2)一般置位、复位指令习惯上都用沿指令触发的,这里确实如你理解没有实际意义。
3)这个问题可能的原因是编程者当时有调用多个位的思路,只是后来也作放弃处理了。
4)这个主要是为了安全和机械性能处理的,一般升级控制操作下降处理必须是这样的,不然很容易产生溜钩,上升其次。
                                                                                                                                                                                                                                                                                                                                   
                                                                                                                                                                                                            1、DB1.DBX1.0是你的启动位p840,那么你的PZD1对应的应该是DB1.DBW0,即高8位是DB1.DBB0,低8位是DB1.DBB1,DB1.DBX0.1就是第9位,图1中(#)位只是保存了#switch的逻辑结果。当#switch为1时,DB1.DBX0.1位为1。你看看PZD1的第9位配的是什么功能就清楚了。假如说启动时,用这一位去打开抱闸。
2、不要上升沿,在你没有处理完报警问题之前,报警会一直在响。
3、两者使用都一样。
*滑块验证:
您需要登录后才可以回帖 登录 | 立即注册

本版积分规则

请珍惜自己的ID,严禁发布垃圾水贴,诸如adsf......顶......纯表情......多次重复回帖刷积分......轻则删帖警告,重则封禁!★请分享资料、经验或者赞助论坛,贡献一份力量★

关闭

最新活动上一条 /1 下一条

小黑屋|手机版|追梦工控论坛|工控论坛-专业的Intouch论坛 ( 皖ICP备2025098961号 )|网站地图

GMT+8, 2025-10-8 08:06 , Processed in 0.149845 second(s), 20 queries , Gzip On, APCu On.

Powered by Dreamyiyi

© 2009-2025 工控论坛

快速回复 返回顶部 返回列表